Detail nabídky
zpět | tisk | Pronájem: Kancelářské prostory se zázemím, popř. i s ubytováním pro zaměstnance
| kód nabídky | 20240302 |
|---|---|
| datum úpravy | 28. červenec 2025 |
| stav | Ihned volný k nastěhování, Aktivní |
| okres | Kladno |
| lokalita | Kladno - Dubí |
| ulice | Libušina |
| cena | 40.000 Kč/měs. (pronájem) + spotřeba energií, vratná kauce 40.000,- Kč, provize RK 120.000,- Kč |
Jedná se o soubor kancelářských, příp. obchodních prostorů se třemi samostatnými vstupy.
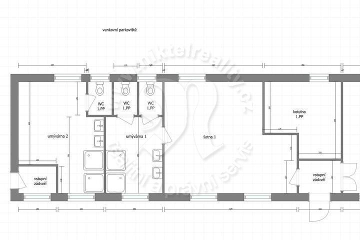
Členění prostorů (přesná dispozice viz plánek):
1.NP: vstupní chodba, 4× kancelář č.1 – č.4 (plocha 24,90 m2,
21,90 m2, 12,90 m2, 27,10 m2), denní místnost – kuchyňka, toalety
pánské a dámské, úklidová místnost.
Celková užitná plocha prostorů 1. NP činí cca 128 m2.
Prostory jsou přístupné z vlastního parkoviště navazujícího přímo na
kancelářskou budovu.
1.PP – část A : vstupní chodba/ zádveří, kancelář 5 (plocha
42 m2), původní místnost šaten, kterou je možné rovněž využívat jako
další kancelář, případně sklad, umývárna 1 se dvěma samostatnými
toaletami a dvěma sprchovými kouty + umyvadly.
1.PP – část B: samostatně přístupný prostor umývárny 2 s vlastním
vstupním zádveřím. V umývárně jsou instalovány dva sprchové kouty +
dvě umyvadla, samostatná toaleta.
Celková užitná plocha obou prostorů 1. PP činí cca 128 m2.
Oba prostory mají vlastní společné vytápění kotlem napojeným na ústřední topení. Ohřev vody realizovaný elektrický bojlerem. Zabezpečeno mřížemi a elektronickým zabezpečovacím systémem napojeným na ostrahu. Provedeno zateplení vnějších konstrukcí. Instalována nová plastová okna, nové plastové vchodové dveře, nové rozvody.
Možnost parkování na pozemku před kancelářskou částí 1.NP pro vícero vozů. Prostory se nacházejí u ulice Libušina, Kladno. Výborné dopravní spojení.
Měsíční nájemné činí 40.000,– Kč + spotřeba energií. Majitel požaduje vratnou kauci 40.000,– Kč. Záloha na realitní a právní služby činí 120.000,– Kč. Nebytové prostory jsou volné ihned. Celková platba při převzetí nájmu je tedy 200.000,– Kč (nájem na první měsíc, 1 x vratná kauce, provize RK- možnost rozdělení i na splátky). Prostory jsou pronajímány dlouhodobě a jako celek dohromady.
PENB v současnosti zajišťujeme, proto je nemovitost administrativně ze zákona zařazena do třídy energetické náročnosti G. Skutečná energetická náročnost bude upřesněna později.
Kontaktní informace
Erik Lajbner
Realitní makléř
Tel: 602 235 760
Tel: 312 688 500
Email: lajbner@niktelreality.cz
zaslat vzkaz

Pobočka Kladno
Kročehlavská 67
272 01 Kladno
Telefon: 312 688 500
Infolinka: 800 17 18 19 (volejte zdarma)
Email: info@niktelreality.cz
Technické údaje
| Účel nemovitosti | Kanceláře, výroba, sklad |
|---|---|
| Konstrukce budovy | cihlová |
| Užitná plocha | 250 |
| Orientace | J + S |
| Umístění v obci | okraj obce |
| Počet kanceláří | 5 |
| Plyn | ano |
|---|---|
| Elektroinstalace | 230/400 V |
| Voda | vodovod |
| Kanalizace | ano |
| Topení | ÚT plynové |
| Sociální zařízení | několik samostatných WC, sprch a umýváren |
| Parkování | pro více vozů |
| Garáž | ne |
| Výtah | ne |
| Počet NP | 2 |
| Počet PP | 1 |
| Stav objektu | po rekonstrukci |
| Třída energetická náročnosti | G - mimořádně nehospodárná |









































